Byt C103

Všechny byty

Byt C103 Volný

2+kk s předzahrádkou
71,0 m2
1.podlaží
Cena: 5.665.000 Kč

V ceně:

Užitná plocha bytu – 47,2 m²
Předzahrádka – 21,8 m²
Sklepní kóje – 2,0 m²

Cena nezahrnuje:

Parkovací a garážové stání

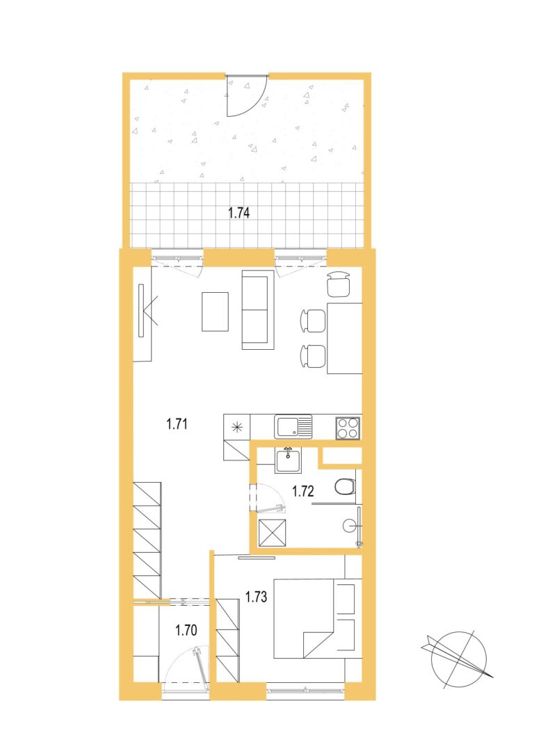
Výměra

  • 1.70 Zádveří 3,10 m2
  • 1.71 Obývací pokoj s kuchyní 29,40 m2
  • 1.72 Koupelna s WC 5,00 m2
  • 1.73 Ložnice 9,70 m2
  • 1.74 Předzahrádka 21,8 m2
Plánek budovy C103
Byt C103
int_001a
int_002a
int_003a
int_004a
int_005a
int_006a
C102
C102_1
C102_2
z3
z2
z1
005a
004a
002_sklo
001_sklo
003b
009c
Nadstandardní developerský projekt
Nadstandardní developerský projekt
Nadstandardní developerský projekt
Nadstandardní developerský projekt
Main Square Residence

Nadstandardní developerský projekt

Klademe maximální důraz na kvalitu provedení a moderní technické řešení. Ve standardu nabízíme například venkovní žaluzie, podlahové vytápění, přípravu na klimatizaci, možnost provedení inteligentního systému Loxone smart home, parkovací a garážové stání i pro EV a mnoho dalšího.

Předzahrádky, terasy a lodžie

Výjimečná lokalita

Standardy
Standardy
Standardy
Standardy
Standardy
Standardy
Main Square Residence

Standardy

Standardy projektu jsou nastaveny ve vysoké kvalitě provedení a v mnoha ohledech přesahující běžný rámec developerských projektů.

Loxone smart home, parkování i pro EV

Podlahové topení, klimatizace, výtah, venkovní žaluzie

Moderní byty v srdci Holešova
Moderní byty v srdci Holešova
Moderní byty v srdci Holešova
Moderní byty v srdci Holešova
Main Square Residence

Moderní byty v srdci Holešova

Dispozice 1+kk až 4+kk, s převahou oblíbených bytů 2+kk. Součástí bytu je vždy předzahrádka, terasa nebo lodžie.

Bytový dům v samotném centru města Holešov

Moderní bydlení s chytrou domácností

Prohlížíte: Byt C103 Volný

2+kk s předzahrádkou
71,0
1.podlaží

Hostýnské vrchy na dohled

Zámecká zahrada v docházkové vzdálenosti

2,5 km dálnice

1 km autobusové nádraží

500 m zámecká zahrada

MŠ/ZŠ/SŠ v docházkové vzdálenosti

18 km Zlín

O nás

Main Square Residence

Main Square Residence je nadstandardní bytový dům situovaný přímo na náměstí v srdci Holešova. Projekt nabízí moderní bydlení s výtahem a vyhrazenými parkovacími stáními.

Kontakt
>