Byt C101 Volný
V ceně:
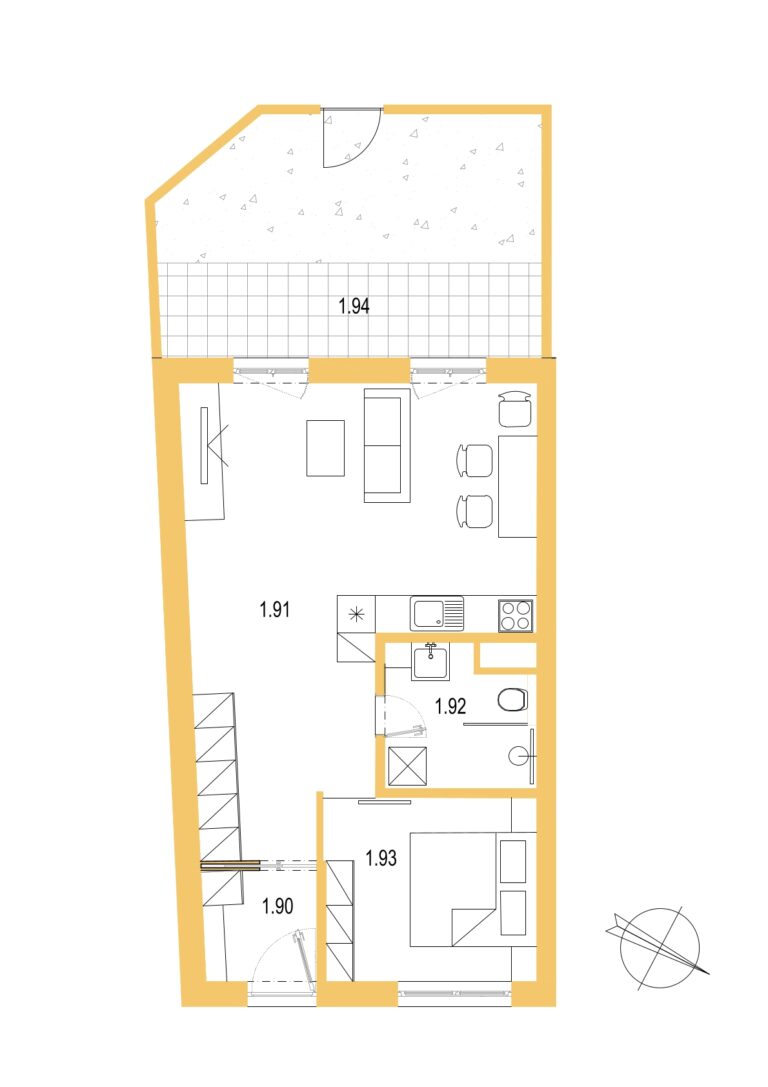
Užitná plocha bytu – 49,2 m²
Předzahrádka – 22,2 m²
Sklepní kóje – 2,0 m²
Cena nezahrnuje:
Výměra
- 1.90 Zádveří 3,10 m2
- 1.91 Obývací pokoj s kuchyní 31,40 m2
- 1.92 Koupelna s WC 5,00 m2
- 1.93 Ložnice 9,70 m2
- 1.94 Předzahrádka 22,20 m2
Nadstandardní developerský projekt
Klademe maximální důraz na kvalitu provedení a moderní technické řešení. Ve standardu nabízíme například venkovní žaluzie, podlahové vytápění, přípravu na klimatizaci, možnost provedení inteligentního systému Loxone smart home, parkovací a garážové stání i pro EV a mnoho dalšího.
Předzahrádky, terasy a lodžie
Výjimečná lokalita
Standardy
Standardy projektu jsou nastaveny ve vysoké kvalitě provedení a v mnoha ohledech přesahující běžný rámec developerských projektů.
Loxone smart home, parkování i pro EV
Podlahové topení, klimatizace, výtah, venkovní žaluzie
Moderní byty v srdci Holešova
Dispozice 1+kk až 4+kk, s převahou oblíbených bytů 2+kk. Součástí bytu je vždy předzahrádka, terasa nebo lodžie.
Bytový dům v samotném centru města Holešov
Moderní bydlení s chytrou domácností
2,5 km dálnice
1 km autobusové nádraží
500 m zámecká zahrada
MŠ/ZŠ/SŠ v docházkové vzdálenosti
18 km Zlín
Main Square Residence
Main Square Residence je nadstandardní bytový dům situovaný přímo na náměstí v srdci Holešova. Projekt nabízí moderní bydlení s výtahem a vyhrazenými parkovacími stáními.