Byt A402

Všechny byty

Byt A402 Volný

3+kk s luxusní terasou a lodžií
117,4 m2
4.podlaží
Cena: 7.995.000 Kč

V ceně:

Užitná plocha bytu – 79,00 m²
Lodžie – 4,4 m²
Terasa – 34,00 m²
Sklepní kóje – 2,0 m²

Cena nezahrnuje:

Parkovací a garážové stání

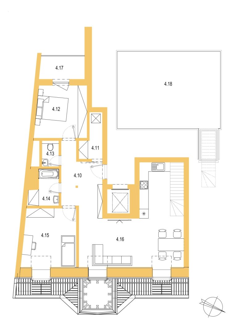
Výměra

  • 4.10 Chodba 9,20 m2
  • 4.11 Prádelna 3,40 m2
  • 4.12 Ložnice 11,40 m2
  • 4.13 WC 1,90 m2
  • 4.14 Koupelna 3,90 m2
  • 4.15 Pokoj 14,00 m2
  • 4.16 Obývací pokoj a kuchyň 35,20 m2
  • 4.17 Lodžie 4,40 m2
  • 4.18 Terasa 34,00 m2
Plánek budovy A402
Byt A402
deqqfjr7ufmz0cagn9re
ubza5c54aprmixibprai
007b
009c
balkon_002
balkon_001
int_001a
int_002a
int_003a
int_004a
int_005a
int_006a
B301
B301_1
B301_2
Nadstandardní developerský projekt
Nadstandardní developerský projekt
Nadstandardní developerský projekt
Nadstandardní developerský projekt
Main Square Residence

Nadstandardní developerský projekt

Klademe maximální důraz na kvalitu provedení a moderní technické řešení. Ve standardu nabízíme například venkovní žaluzie, podlahové vytápění, přípravu na klimatizaci, možnost provedení inteligentního systému Loxone smart home, parkovací a garážové stání i pro EV a mnoho dalšího.

Předzahrádky, terasy a lodžie

Výjimečná lokalita

Standardy
Standardy
Standardy
Standardy
Standardy
Standardy
Main Square Residence

Standardy

Standardy projektu jsou nastaveny ve vysoké kvalitě provedení a v mnoha ohledech přesahující běžný rámec developerských projektů.

Loxone smart home, parkování i pro EV

Podlahové topení, klimatizace, výtah, venkovní žaluzie

Moderní byty v srdci Holešova
Moderní byty v srdci Holešova
Moderní byty v srdci Holešova
Moderní byty v srdci Holešova
Main Square Residence

Moderní byty v srdci Holešova

Dispozice 1+kk až 4+kk, s převahou oblíbených bytů 2+kk. Součástí bytu je vždy předzahrádka, terasa nebo lodžie.

Bytový dům v samotném centru města Holešov

Moderní bydlení s chytrou domácností

Prohlížíte: Byt A402 Volný

3+kk s luxusní terasou a lodžií
117,4
4.podlaží

Hostýnské vrchy na dohled

Zámecká zahrada v docházkové vzdálenosti

2,5 km dálnice

1 km autobusové nádraží

500 m zámecká zahrada

MŠ/ZŠ/SŠ v docházkové vzdálenosti

18 km Zlín

O nás

Main Square Residence

Main Square Residence je nadstandardní bytový dům situovaný přímo na náměstí v srdci Holešova. Projekt nabízí moderní bydlení s výtahem a vyhrazenými parkovacími stáními.

Kontakt
>